中文
|
EN
|
繁体
国机集团网站群
首页
开云online(中国)
新闻中心
业务领域
科技创新
企业文化
党群建设
人力资源
社会责任
所属企业
招标采购
联系我们
信息公开
设计咨询
城市综合体
设计咨询
工程咨询
城市规划
医疗建筑
养老建筑
文化观演建筑
酒店建筑
教育建筑
体育建筑
城市综合体
办公建筑
科研建筑
海外建筑
生物实验
工业工程
机场物流
能源环境
室内设计
景观设计
城市综合体
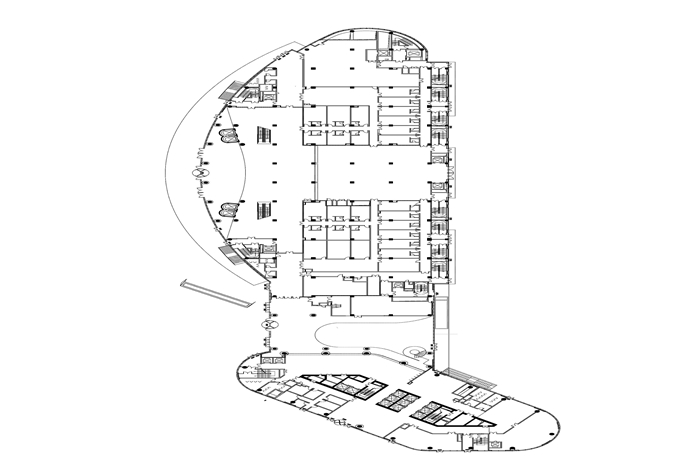
河南煤业化工集团科技研发中心项目
发布时间:[2019-01-30]
文章来源:
【
大
中
小
】
建筑面积:
368000
平方米
项目地点:河南
设计时间:
2010
年
乐鱼体育
|
星空网页版登录入口
|
米兰官方站网页版在线登入
|
MILANCOM米兰·(中国)官方网站
|
MK平台
|
电子竞技赛事平台
|
开云官方版网站登录入口
|
华体会平台
|
LY.COM
|